top of page

Da ristrutturare
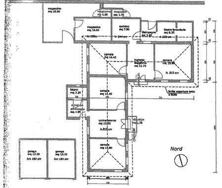
VENDUTO - In vendita a Spinea, nella zona Fossa, interessante opportunità per un fabbricato bifamiliare disposto tutto al piano terra, con una superficie calpestabile di 100 mq. L'immobile è composto da 3 locali, 2 bagni e un'area esterna di 200 mq che include giardino e scoperto esclusivo. Completa la proprietà un magazzino di 30 mq e 2 garage. L'orientamento su tutti e quattro i lati consente una buona luminosità. La casa è da ristrutturare, ma offre la possibilità di essere trasformata in una residenza singola tutta su un unico piano. Riscaldamento autonomo a gas naturale. Costruita nel 1960, l'immobile si trova in una posizione comoda, con garage e posto auto inclusi nel prezzo.
Classe energetica
G ipe 455,00
bottom of page








